Wohnung Wallendorf
Prix:
487 900 €
Surface:
108
Chambres à coucher:
2
Nombre de pièces:
5
Parking extérieur:
1
Garage:
1
Date de construction:
2025
Description:
**Verkauf einer Wohnung in einem modernen Fünf-Familienhauses in Wallendorf**
Nutzen Sie die Gelegenheit, eine Wohnung in einem noch zu errichtendem traumhaftem Fünf-Familienhaus in Wallendorf zu erwerben, wo sich die Natur und die Annehmlichkeiten des Lebens harmonisch verbinden. Das Anwesen liegt malerisch auf einer Anhöhe und bietet einen atemberaubenden Fernblick in südlicher Ausrichtung, der jeden Tag zu einem besonderen Erlebnis macht.
**Das Haus:**
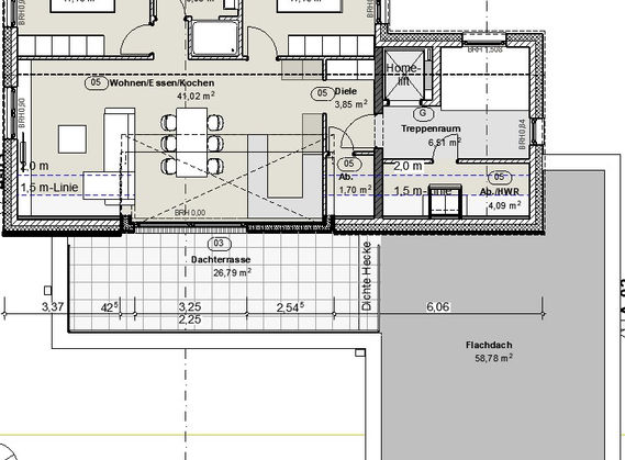
Das Neubauprojekt umfasst insgesamt ca. 430 m² Wohnfläche, verteilt auf fünf moderne Wohneinheiten mit Größen von 78 bis 109 m². Jede Wohnung verfügt über einen eigenen Stellplatz und oder Garagenstellplatz sowie einen Balkon oder eine Terrasse, die zum Verweilen einladen. Das Gebäude wird nach den neuesten energetischen Standards erbaut, inklusive einer Wärmepumpe und hochwertiger Isolation, die höchsten Schallschutz bietet.
Dieses Fünf-Familienhaus vereint zeitgemäßen Wohnkomfort mit einer idyllischen Lage und hervorragender Anbindung.
**Lage und Verkehrsanbindung: **
Wallendorf besticht durch seine hervorragende Verkehrsanbindung nach Luxemburg. Die charmante Stadt Diekirch sowie Ettelbrück sind nur 11 km bzw. 20 km entfernt, während Echternach in ebenso kurzer Distanz liegt. Bitburg ist 23 km und Trier 26 km entfernt. Der Flugplatz Findel Luxemburg ist in nur 30 Minuten erreichbar. In fußläufiger Nähe (ca. 300 m) finden Sie eine Haltestelle mit regelmäßigen Busverbindungen nach Echternach, Diekirch und Ettelbrück, von wo aus Sie bequem mit dem Zug weiterreisen können.
**Infrastruktur und Freizeitmöglichkeiten: ** Die Umgebung bietet zahlreiche Einkaufsmöglichkeiten, darunter einen Supermarkt in Beaufort, Körperich sowie verschiedene Ärzte, Restaurants und Freizeitangebote wie eine Schlittschuhbahn und ein Freibad. Für größere Einkäufe stehen Ihnen in den nahegelegenen Orten diverse Supermärkte wie Cactus, Lidl und Aldi zur Verfügung. Zudem finden Sie in der Nähe einen Übergang nach Luxemburg, wo ein weiteres Restaurant zu Fuß erreichbar ist.
Für Familien ist die Lage besonders attraktiv: Der Kindergarten in Reisdorf ist nur 3 km entfernt, was die tägliche Logistik erleichtert.
Überzeugen Sie sich selbst und vereinbaren Sie einen Termin!








